Mapa   Ficha
SABADELL: Proyecto de 4 naves, con MUELLE de CARGA y Puerta TIR
Sabadell (P. I. Can Roqueta II) - REF. 1182

1.329,93 m2
alquiler: 8.645 €/mes
antes: 12.409 €/mes
Descripción

Proyecto de cuatro naves industriales, tipo B, de nueva construcción, que pueden alquilarse juntas o por separado (en caso de unificación será necesario realizar aperturas entre naves mediante puertas RF, unificación sistemas de placas solares y acometida eléctrica)


Total 4 naves (6.614 m2 por 48.505 €/mes): 

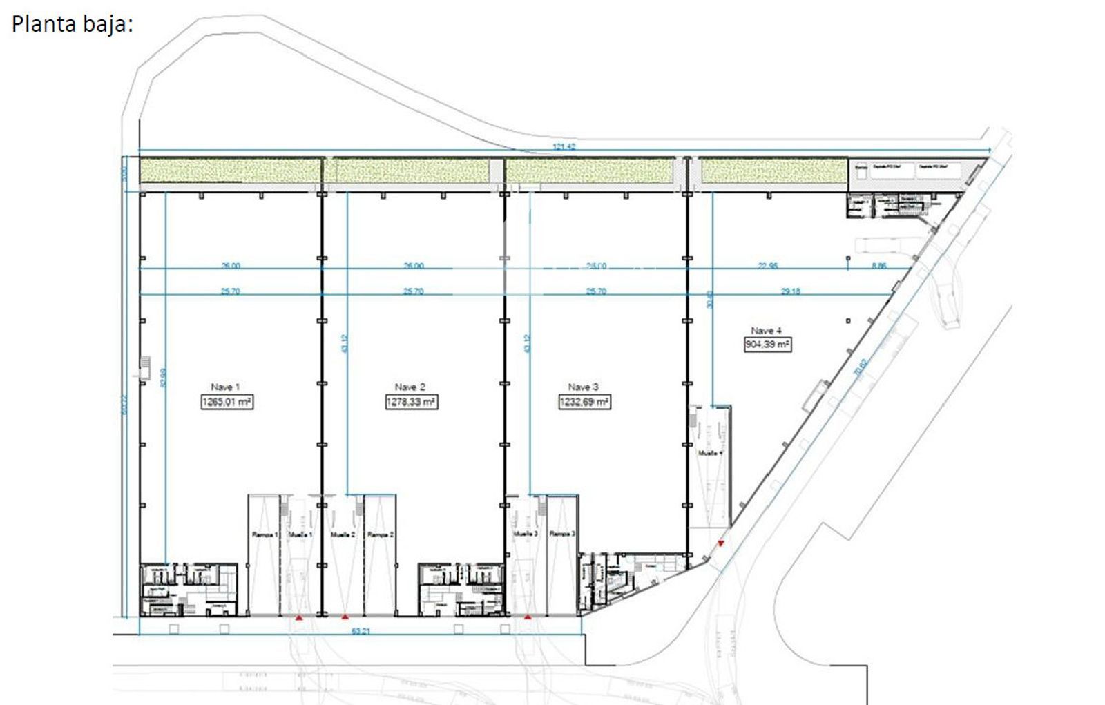
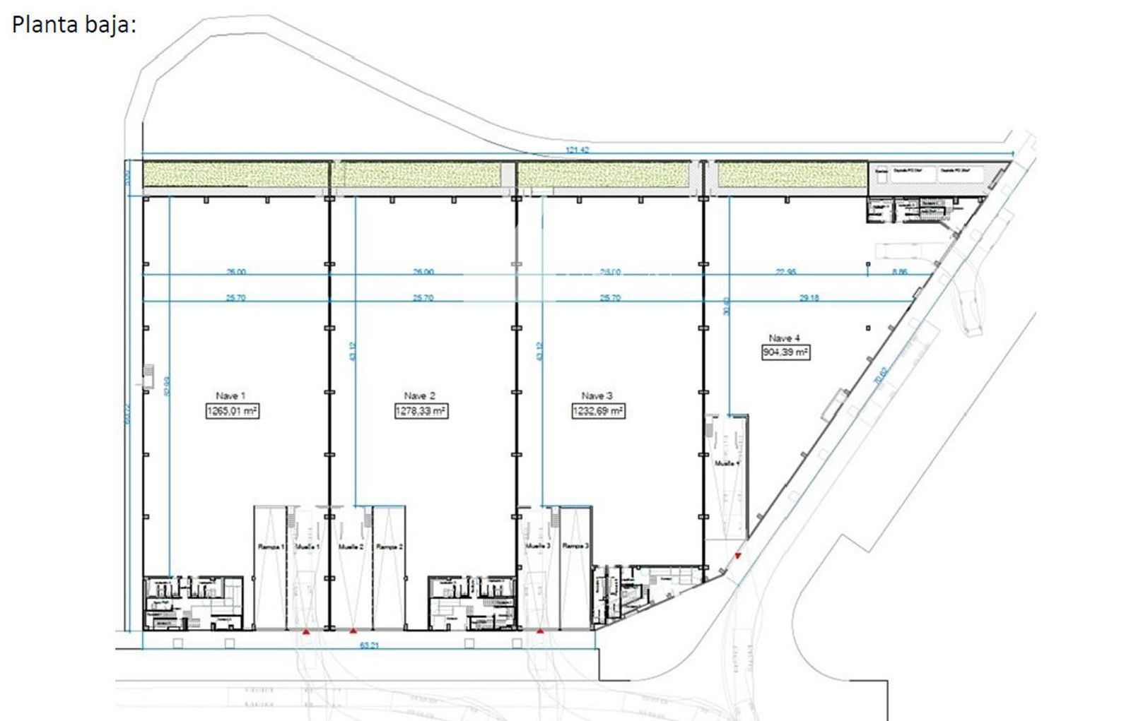
- Planta Baja: 5.833 m2

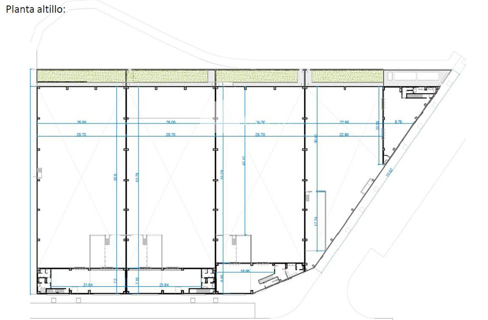
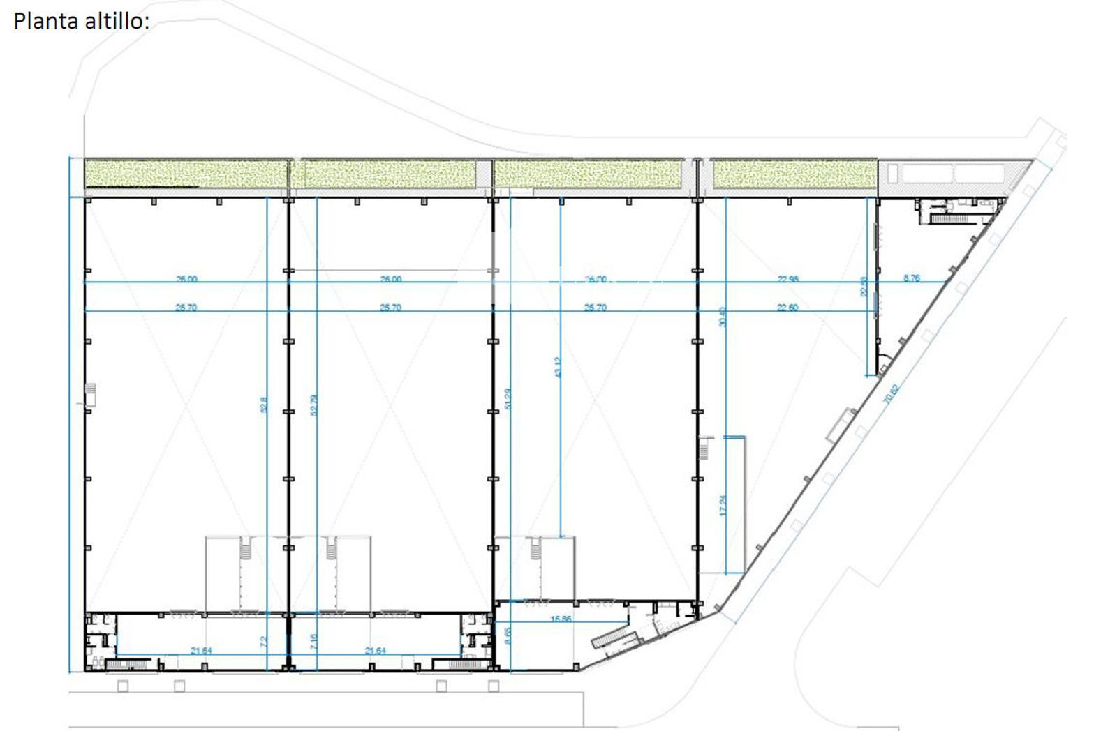
- Planta Altillo: 780 m2

- Patio: 506 m2


Nave 1: 1.780 m2 por 12.818 €/mes

- Planta Baja: 1.585 m2

- Planta Altillo: 195 m2

- Patio: 130 m2


Nave 2: 1.780 m2 por 12.815 €/mes

- Planta Baja: 1.585 m2

- Planta Altillo: 195 m2

- Patio: 130 m2


Nave 3: 1.724 m2 por 12.409 €/mes

- Planta Baja: 1.536 m2

- Planta Altillo: 188 m2

- Patio: 130 m2


Nave 4: 1.330 m2 por 9.010 €/mes

- Planta Baja: 1.128 m2

- Planta Altillo: 202 m2

- Patio: 115 m2


Excelente imagen corporativa

Estructura de hormigón sin pilares intermedios.

Naves diáfanas de altura libre >11m y estructura de hormigón.

Riesgo de incendio medio 5 ampliable a alto 7.

4 muelles de carga, 4 puertas TIR, rampa de acceso desde la calle (una por nave)

Oficinas diáfanas, aseos, vestuarios equipados y patios posteriores de uso privativo.

Cubierta Deck con lana de roca, alta calificación para aseguradoras.

Placas fotovoltaicas instaladas. Producción de 18,000kwh > producción fotovoltaica estimada de 100.299Kwh/año.

Posibilidad de incrementar placas fotovoltaicas en toda la cubierta (sobrecarga 50kg/m²).

Instalación de exutorios para evacuación de humos, permite ventilación e iluminación natural.

Alta eficiencia energética del edificio > certificación tipo A.

Iluminación natural nave mayor del 8% (3-5% iluminación natural standard en naves).

Ventanas en fachada con rotura puente térmico, confort climático y acústico.

Climatización por sistema expansión directa con volumen de refrigerante variable. (VRV- alta eficiencia).

Renovación de aire mediante recuperador de calor de alta eficiencia.

Producción de agua caliente sanitaria (ACS) mediante sistema de aerotermia.

Iluminación LED (bajo consumo) y encendidos controlados mediante detección de presencia.


Aspectos adicionales:

Naves 1 y 2 están al mismo nivel; naves 3 y 4, también al mismo nivel.

Altillos naves 1, 2 y 3 a la misma cota.

Cada nave dispone de acometidas independientes.

La nave 2 cuenta con una zona de suelo reforzado, apta para instalar un depósito o aumentar el riesgo a 7


Polígono industrial consolidado y con todos los servicios: Can Roqueta II (Sabadell - Vallès). Recientemente modernizado: fibra óptica, mejora de calles, cámaras de seguridad en accesos, mejor iluminación, etc.


Disponibilidad: 4º Trimestre 2026


Buenas comunicaciones viarias:

Autopista AP-7, B-140, B-142 y N-150

A 54 Km. Aeropuerto

A 35 Km. Centro de Barcelona

A 44 Km. Puerto de Barcelona

Parada de autobús directa al centro de Sabadell (5 minutos) y con conexión con FGC y RENFE


La renta no incluye posibles gastos de comunidad, IVA, vados, IBI, etc. Los honorarios profesionales serán abonados por la parte arrendataria.

En UBICAT, contamos con más de 20 años en el mercado inmobiliario especializados en el sector empresarial. Nuestra Función es asesorarle en todos los procesos de implantación de su actividad en sus nuevas instalaciones para que usted no tenga que distraer su atención de su negocio. Podemos ofrecerle servicios de intermediación, gestión de contratos de arrendamiento, contratos de compraventa y proyectos de ingeniería si lo precisa.

Características
Precio Alquiler 8.645 €/mes
Año de construcción 2026
Construidos 1.329,93 m2
Parcela 1.243,25 m2
Estado Nueva construcción
Aire acondicionado
Calificación Energética (A) VER
Luz
Acometidas
Agua
Sistema antiincendios
Ubicación
Escalas de eficiencia


-
-

Tu agente
Roger Velilla
Contáctanos

Si deseas más información sobre esta propiedad, por favor, rellena el formulario.

 Sí, he leído y/o acepto las Condiciones de uso y la Política de privacidad
Inmuebles similares:
 
10.297 €/mes
Ref. 1131  1.373 m2
Edificio singular, tipo C, con Planta Baja diáfana y oficinas. Altura de 11 metros, 2 puertas TIR y acabados de calidad, en Polígono Industrial consolidado y recientemente modernizado
 
10.000 €/mes
Ref. 1019  1.236 m2

Naves comerciales de nueva construcción, con excelente imagen, en Sitges. Superficies diáfanas y oficinas acristaladas con mucha luz natural. Zona de aparcamiento para vehículos