Mapa   Ficha
SANTA PERPÈTUA DE MOGODA: Nave con oficinas y muelles de carga
Santa Perpetua De Mogoda (P. I. Can Oller) - REF. 1170

2.221,20 m2
alquiler: 15.548 €/mes
Descripción

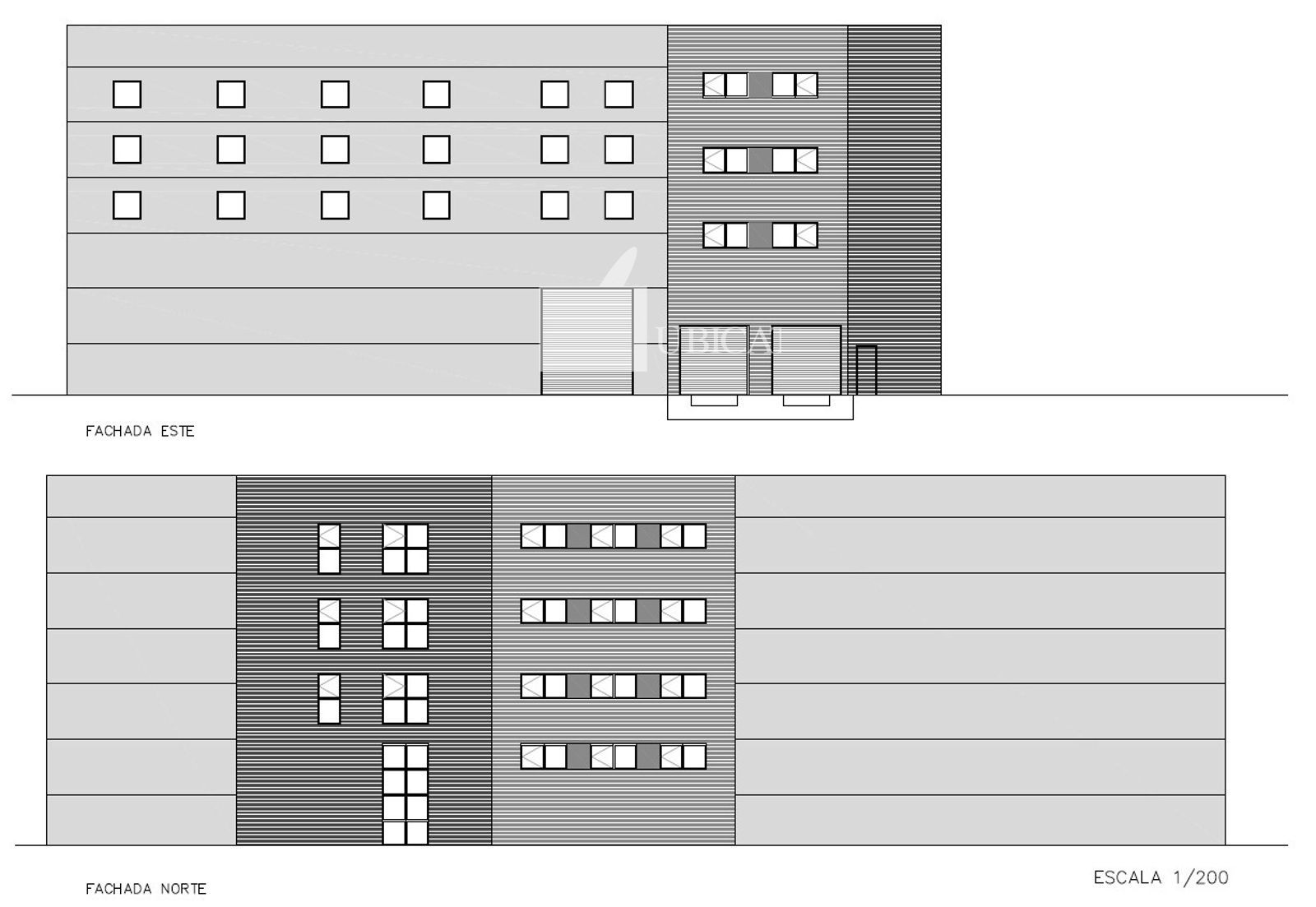
Nave en buen estado, en recinto privado y vallado


Planta Baja: 1.537,40 m2 (1.326 m2 con altura libre de 13,60 m. y 211,40 m2 con altura de 5 m).

Oficinas: 683,70 m2 (distribuidas en tres plantas de 227,90 m2) - Altura de 3 metros

480 kg/m2 resistencia suelo en altillo

Recinto: 3.075 m2 


2 muelles de carga

2 puertas TIR

Ascensor y montacargas

Todas las instalaciones (excepto las específicas para la actividad)

Playa exterior cubierta

Dispone de patio y parking


Disponibilidad: Mayo - Junio 2026


Buenas comunicaciones viarias, junto al CIM Vallès:

Autopista AP-7 y C-58

A 40 Km. Aeropuerto

A 40 Km. Centro de Barcelona

A 31 Km. Puerto de Barcelona

La renta no incluye posibles gastos de comunidad, IVA, vados, IBI, etc. Los honorarios profesionales serán abonados por la parte arrendataria.

En UBICAT, contamos con más de 20 años en el mercado inmobiliario especializados en el sector empresarial. Nuestra Función es asesorarle en todos los procesos de implantación de su actividad en sus nuevas instalaciones para que usted no tenga que distraer su atención de su negocio. Podemos ofrecerle servicios de intermediación, gestión de contratos de arrendamiento, contratos de compraventa y proyectos de ingeniería si lo precisa.

Características
Precio Alquiler 15.548 €/mes
Construidos 2.221,20 m2
Parcela 3.075 m2
Estado Excelente
Ascensor
Calificación Energética En trámite
Luz
Agua
Montacargas
Ubicación
La dirección del inmueble es aproximada.
Escalas de eficiencia



Tu agente
Roger Velilla
Contáctanos

Si deseas más información sobre esta propiedad, por favor, rellena el formulario.

 Sí, he leído y/o acepto las Condiciones de uso y la Política de privacidad
Inmuebles similares:
 
12.815 €/mes
Ref. 1180  1.780 m2

CAN MANENT: Nave tipo B de OBRA NUEVA de 6.613 m2 con una excelente imagen corporativa, distribuida en cuatro naves independientes de aproximadamente 1.600 m2 cada una

 
12.818 €/mes
Ref. 1178  1.780 m2

CAN MANENT: Nave tipo B de OBRA NUEVA de 6.613 m2 con una excelente imagen corporativa, distribuida en cuatro naves independientes de aproximadamente 1.600 m2 cada una