Mapa   Ficha
SABADELL: Varias naves LOGÍSTICAS e INDUSTRIALES en Alquiler
Sabadell (P. I. Can Panyella) - REF. 1141

6.113 m2
alquiler: 45.847 €/mes
Descripción

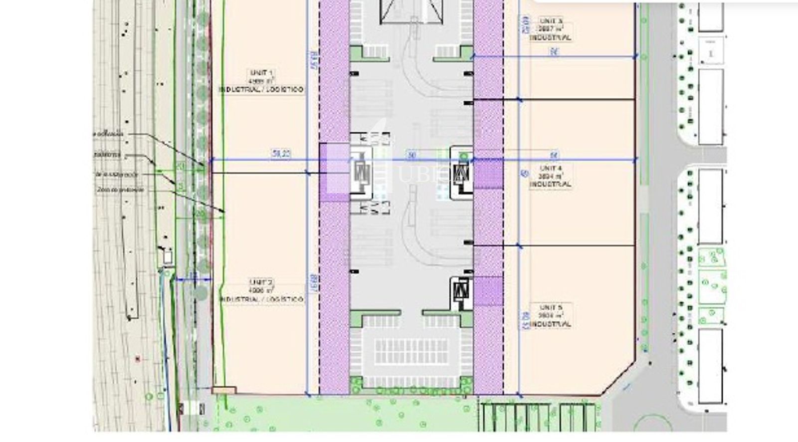
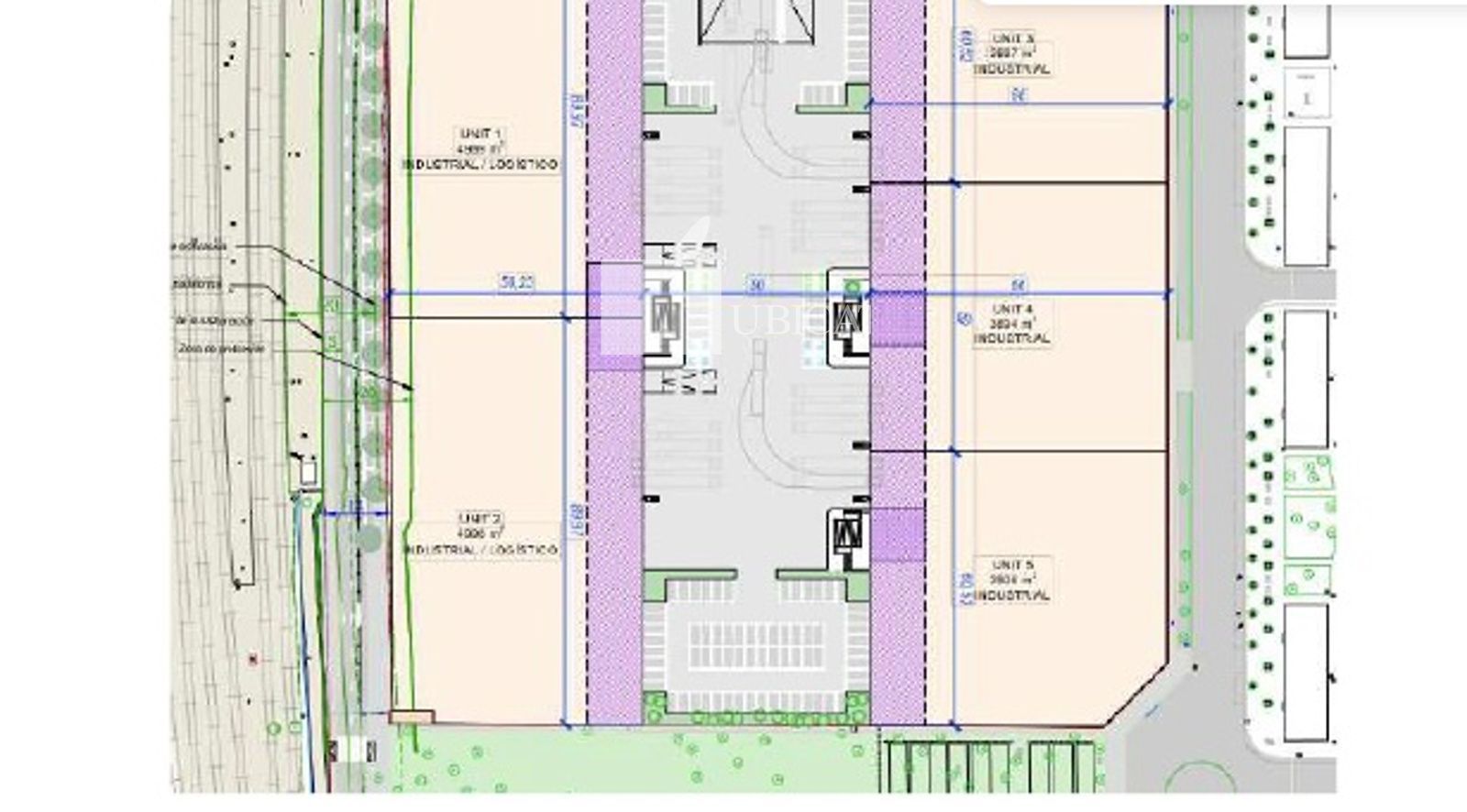
5 Naves disponibles en parcela de 30.8001 m2


Nave 1: 6.113 m2 de Almacén

Nave 2: 6.122 m2 de Almacén

Nave 3: 4.643 m2 de Almacén

Nave 4: 4.631 m2 de Almacén

Nave 5: 4.662 m2 de Almacén

Nave 1-5: 26.171 m2 de Almacén

Auxiliar: 130 m2


Estructura prefabricada de hormigón

Cubierta tipo sándwich

Altura en Planta Baja: 10 metros

18 Muelles de Carga

5 puertas TIR

Amplia playa de maniobra de hasta 35 m2

Oficinas totalmente acondicionadas en Planta Primera

Medidas contra incendios riesgo medio 5

Aparcamiento: 116-141 plazas

Certificación BREEAM Excellent


Disponibilidad Inmediata


Buenas comunicaciones viarias:

Autopista C-58, AP-7, B-140, B-142 y N-150

A 40 Km. Aeropuerto

A 35 Km. Centro de Barcelona

A 30 Km. Puerto de Barcelona

Cercanía a la estación de RENFE Sabadell Sud


La renta no incluye posibles gastos de comunidad, IVA, vados, IBI, etc. Los honorarios profesionales serán abonados por la parte arrendataria.

En UBICAT, contamos con más de 20 años en el mercado inmobiliario especializados en el sector empresarial. Nuestra Función es asesorarle en todos los procesos de implantación de su actividad en sus nuevas instalaciones para que usted no tenga que distraer su atención de su negocio. Podemos ofrecerle servicios de intermediación, gestión de contratos de arrendamiento, contratos de compraventa y proyectos de ingeniería si lo precisa.

Características
Precio Alquiler 45.847 €/mes
Construidos 6.113 m2
Parkings 141
Estado Buen estado
Calificación Energética En trámite
Sistema antiincendios
Ubicación
Escalas de eficiencia



Tu agente
Roger Velilla
Contáctanos

Si deseas más información sobre esta propiedad, por favor, rellena el formulario.

 Sí, he leído y/o acepto las Condiciones de uso y la Política de privacidad
Galería
Inmuebles similares:
 
45.450 €/mes
Ref. 1185  6.700 m2

Nave logística aislada, tipo C, en perfecto estado. Altura de 8 metros, con alarma, detectores de incendios y radiofrecuencia. Dispone de oficinas y planta baja diáfana

 
38.042 €/mes
Ref. 1184  5.284 m2

CAN MANENT: Nave tipo B de OBRA NUEVA de 6.613 m2 con una excelente imagen corporativa, distribuida en cuatro naves independientes de aproximadamente 1.600 m2 cada una