Mapa   Ficha
POLINYÀ: Nave en construcción - PROYECTO LLAVES EN MANO
Polinya (P. I. Can Humet) - REF. 1135

7.703,36 m2
alquiler: Precio a Consultar
Descripción

Nave logística en Alquiler (EN CONSTRUCCIÓN) - Posibilidad proyecto llaves en mano

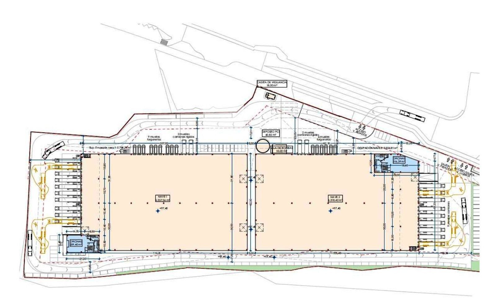
Dispone de dos módulos:


Nave 1 (7.703 m2):

- Almacén: 6.557 m2

- Oficinas en Planta Baja: 239 m2

- Oficinas en Planta 1: 239 m2

- Altillo técnico: 667 m2


Nave 2 (7.477 m2):

- Almacén: 6.218 m2

- Oficinas en Planta Baja: 316 m2

- Oficinas en Planta 1: 316 m2

- Altillo técnico: 626,24 m2


Nave 1+2 (15.315 m2):

- Almacén: 12.776 m2

- Oficinas en Planta Baja: 556 m2

- Oficinas en Planta 1: 556 m2

- Altillo técnico: 1.293 m2

- Edificios auxiliares: 134 m2


Nave Logística Crossdock modulable a las necesidades del cliente

Altura máxima: 13 metros

Estructura de hormigón

Cubierta tipo sándwich

Oficinas totalmente acondicionadas ubicadas en planta baja y planta primera

Total: 19 muelles de carga para trailer y 15 muelles de carga para furgoneta

4 puertas TIR

Nave 1: 10 muelles para camiones y 9 para furgonetas

Nave 2: 9 muelles para camiones y 6 para furgonetas

Medidas PCI. Nave preparada para Riesgo medio tipo 5

Amplia zona para maniobras

146 plazas de aparcamiento


Disponibilidad: 15 meses desde la firma


Renta: A consultar


La parcela tiene fachada a carretera de Mollet a Santa Perpètua de Mogoda en la entrada de Polinyà. En el entorno encontramos municipios colindantes como Santa Perpètua, Sabadell y Barberà del Vallès.

Buenas comunicaciones viarias:

Autopistas AP-7, C-17 y C-58

A 30 Km. Aeropuerto de El Prat (Barcelona)

A 30 Km. Centro de Barcelona

A 36 Km. Puerto de Barcelona

La renta no incluye posibles gastos de comunidad, IVA, vados, IBI, etc. Los honorarios profesionales serán abonados por la parte arrendataria.

En UBICAT, contamos con más de 20 años en el mercado inmobiliario especializados en el sector empresarial. Nuestra Función es asesorarle en todos los procesos de implantación de su actividad en sus nuevas instalaciones para que usted no tenga que distraer su atención de su negocio. Podemos ofrecerle servicios de intermediación, gestión de contratos de arrendamiento, contratos de compraventa y proyectos de ingeniería si lo precisa.

Características
Año de construcción 2026
Construidos 7.703,36 m2
Parcela 29.416,68 m2
Parkings 146
Estado Nueva construcción
Calificación Energética En trámite
Sistema antiincendios
Ubicación
Escalas de eficiencia



Tu agente
Roger Velilla
Contáctanos

Si deseas más información sobre esta propiedad, por favor, rellena el formulario.

 Sí, he leído y/o acepto las Condiciones de uso y la Política de privacidad
Galería