Mapa   Ficha
SABADELL: Proyecto de nave AISLADA, con GRAN IMAGEN
Sabadell (P. I. Can Roqueta II) - REF. 1131

1.373 m2
alquiler: 10.297 €/mes
Descripción

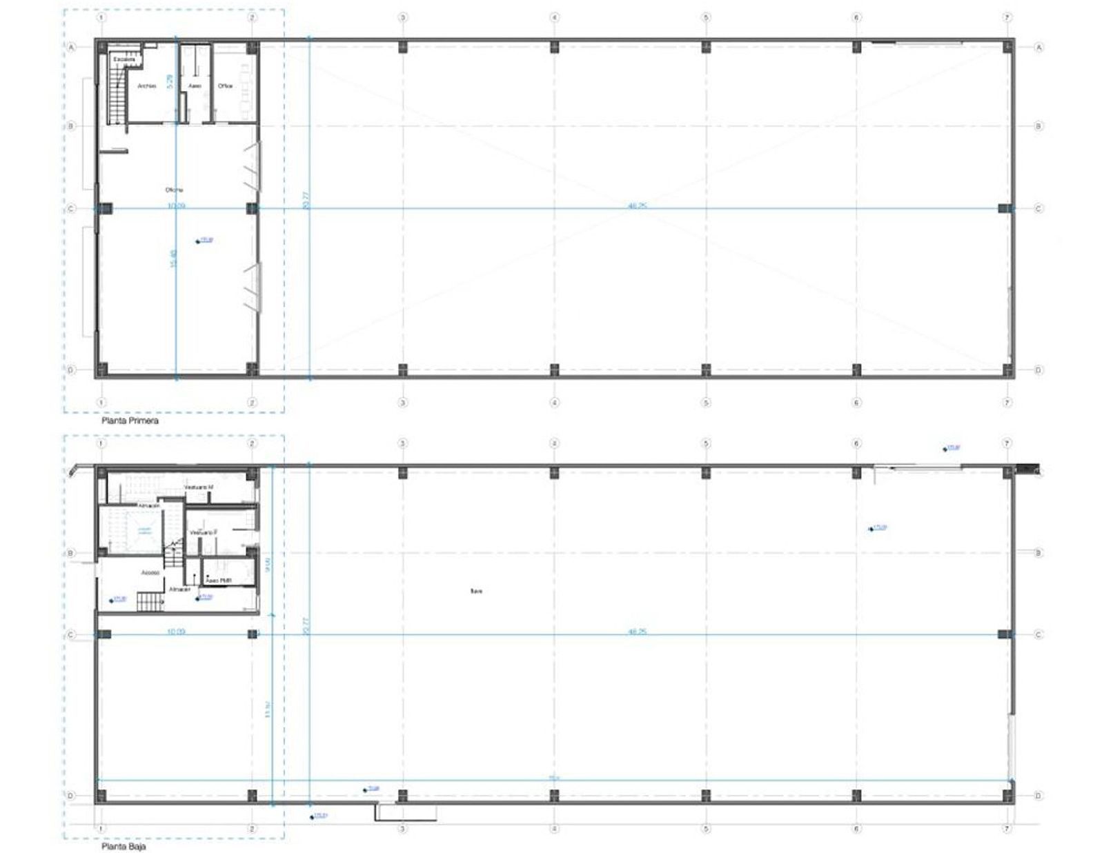
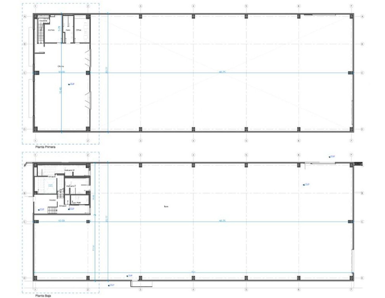
Proyecto de Nave Industrial, tipo C

Planta Baja: 1.170 m2

Oficinas: 203 m2

Excelente imagen corporativa

Edificio singular, aislado

Altura: 11 metros bajo jácenas

Carga de fuego media (5), escalable a alta

2 puertas TIR (fachada y patio trasero)

Alta eficiencia energética del edificio

Iluminación natural

Amplias calles y accesos facilitadores de la logística de todo tipo de transporte

Polígono industrial consolidado y con todos los servicios: Can Roqueta II (Sabadell - Vallès). Recientemente modernizado: fibra óptica, mejora de calles, cámaras de seguridad en accesos, mejor iluminación, etc. 


Disponibilidad: 2º Trimestre 2026


Buenas comunicaciones viarias:

Autopista AP-7, B-140, B-142 y N-150

A 54 Km. Aeropuerto

A 35 Km. Centro de Barcelona

A 44 Km. Puerto de Barcelona

Parada de autobús directa al centro de Sabadell (5 minutos) y con conexión con FGC y RENFE


La renta no incluye posibles gastos de comunidad, IVA, vados, IBI, etc. Los honorarios profesionales serán abonados por la parte arrendataria.

En UBICAT, contamos con más de 20 años en el mercado inmobiliario especializados en el sector empresarial. Nuestra Función es asesorarle en todos los procesos de implantación de su actividad en sus nuevas instalaciones para que usted no tenga que distraer su atención de su negocio. Podemos ofrecerle servicios de intermediación, gestión de contratos de arrendamiento, contratos de compraventa y proyectos de ingeniería si lo precisa.

Características
Precio Alquiler 10.297 €/mes
Año de construcción 2026
Construidos 1.373 m2
Estado Nueva construcción
Calificación Energética En trámite
Sistema antiincendios
Ubicación
Escalas de eficiencia



Tu agente
Roger Velilla
Contáctanos

Si deseas más información sobre esta propiedad, por favor, rellena el formulario.

 Sí, he leído y/o acepto las Condiciones de uso y la Política de privacidad
Inmuebles similares:
 
8.645 €/mes
Ref. 1182  1.330 m2

CAN MANENT: Nave tipo B de OBRA NUEVA de 6.613 m2 con una excelente imagen corporativa, distribuida en cuatro naves independientes de aproximadamente 1.600 m2 cada una

 
12.000 €/mes
Ref. 1056  303 m2

Local en construcción, al lado del cine del Centro Comercial Via Sabadell. Ideal para negocios de RESTAURACIÓN. Mucha luminosidad. Junto a IKEA y otros comercios.