Mapa   Ficha
SANT ANDREU DE LA BARCA: Nave LOGÍSTICA con MUELLES y OFICINAS
Sant Andreu De La Barca (P. I. Nord-Est) - REF. 1121

3.848 m2
alquiler: 30.592 €/mes
Descripción

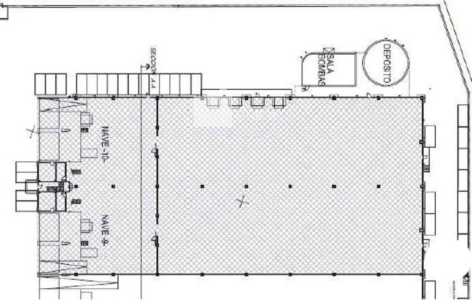
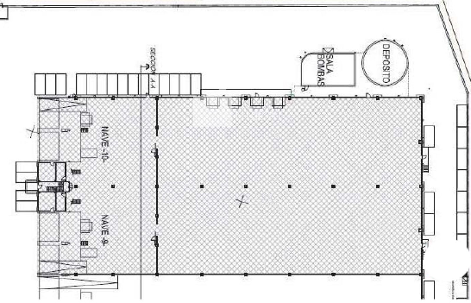
Nave logística con fachada a autopista

Almacén: 3.510 m2

Oficinas: 338 m2

Altura interior: 10,50 metros

Estructura de hormigón

8 muelles de carga y rampas

Oficinas acondicionadas, aseos y vestuarios

Rociadores, ESFR, bocas de incendio y detectores (La nave se adecuará al nuevo RSCIEI 25)

Plazas de aparcamiento

Seguridad y control de acceso

Posibilidad de adquirir estanterías para 6.000 palets


Disponibilidad Inmediata


Buenas comunicaciones viarias:

Autopistas AP-2

A 25 Km. Aeropuerto de El Prat (Barcelona)

A 26 Km. Centro de Barcelona

A 27 Km. Puerto de Barcelona

La renta no incluye posibles gastos de comunidad, IVA, vados, IBI, etc. Los honorarios profesionales serán abonados por la parte arrendataria.

En UBICAT, contamos con más de 20 años en el mercado inmobiliario especializados en el sector empresarial. Nuestra Función es asesorarle en todos los procesos de implantación de su actividad en sus nuevas instalaciones para que usted no tenga que distraer su atención de su negocio. Podemos ofrecerle servicios de intermediación, gestión de contratos de arrendamiento, contratos de compraventa y proyectos de ingeniería si lo precisa.

Características
Precio Alquiler 30.592 €/mes
Construidos 3.848 m2
Calificación Energética En trámite
Ubicación
Escalas de eficiencia



Tu agente
Roger Velilla
Contáctanos

Si deseas más información sobre esta propiedad, por favor, rellena el formulario.

 Sí, he leído y/o acepto las Condiciones de uso y la Política de privacidad
Inmuebles similares:
 
25.633 €/mes
Ref. 1183  3.560 m2

CAN MANENT: Nave tipo B de OBRA NUEVA de 6.613 m2 con una excelente imagen corporativa, distribuida en cuatro naves independientes de aproximadamente 1.600 m2 cada una

 
30.180 €/mes
Ref. 1050  5.487 m2

Nave en perfecto estado, con posibilidad de puente grúa. 4 puertas TIR y altura de 12 metros. Oficinas totalmente renovadas. Patio y parking. Posibilidad de unir superficies.