Mapa   Ficha
MARTORELL: Proyecto Logístico con MUELLES de CARGA, OFICINAS y MÁXIMAS CALIDADES
Martorell - REF. 1114

26.129,91 m2
alquiler: 181.603 €/mes
Descripción

Proyecto de naves logísticas a estrenar, en Alquiler en Martorell


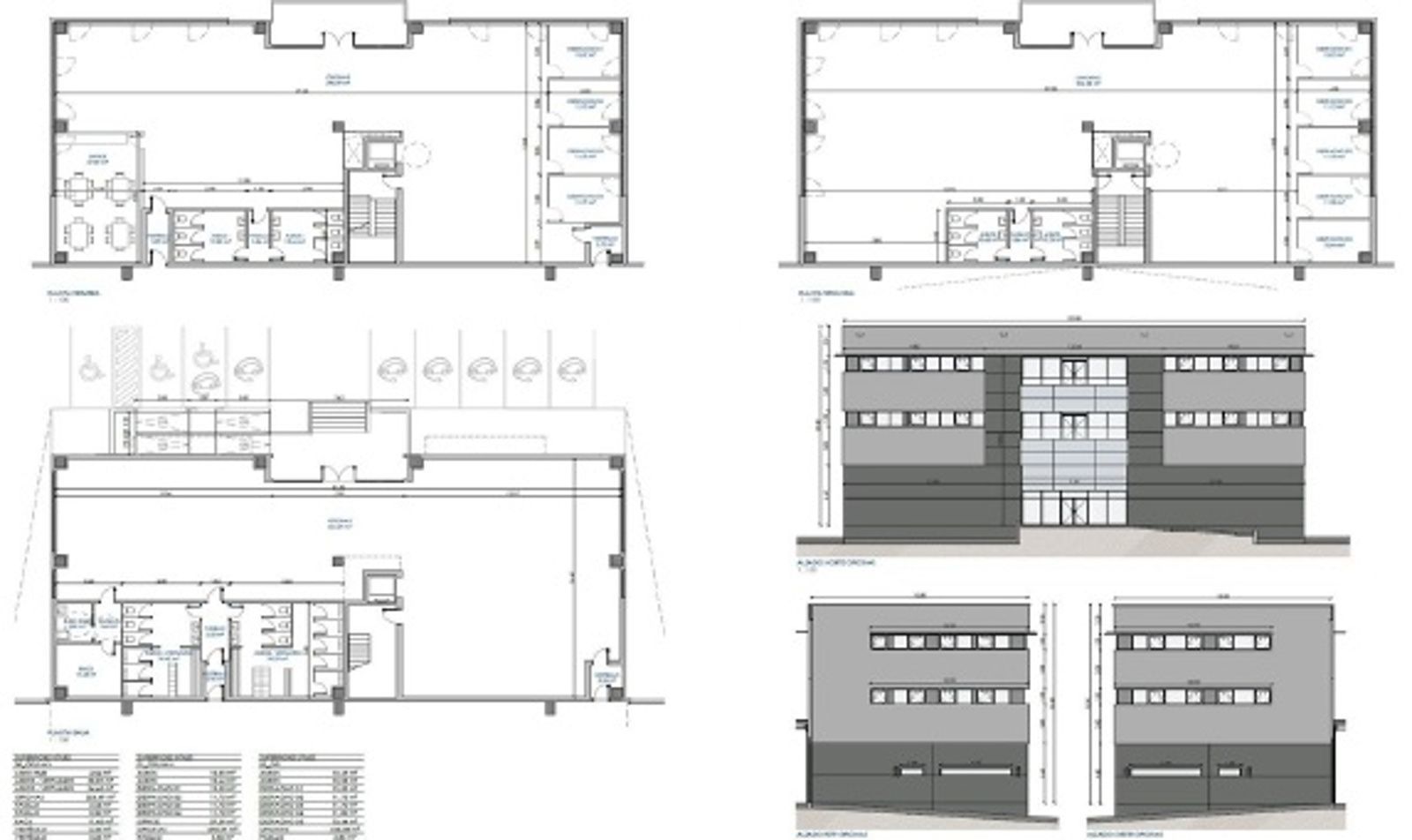
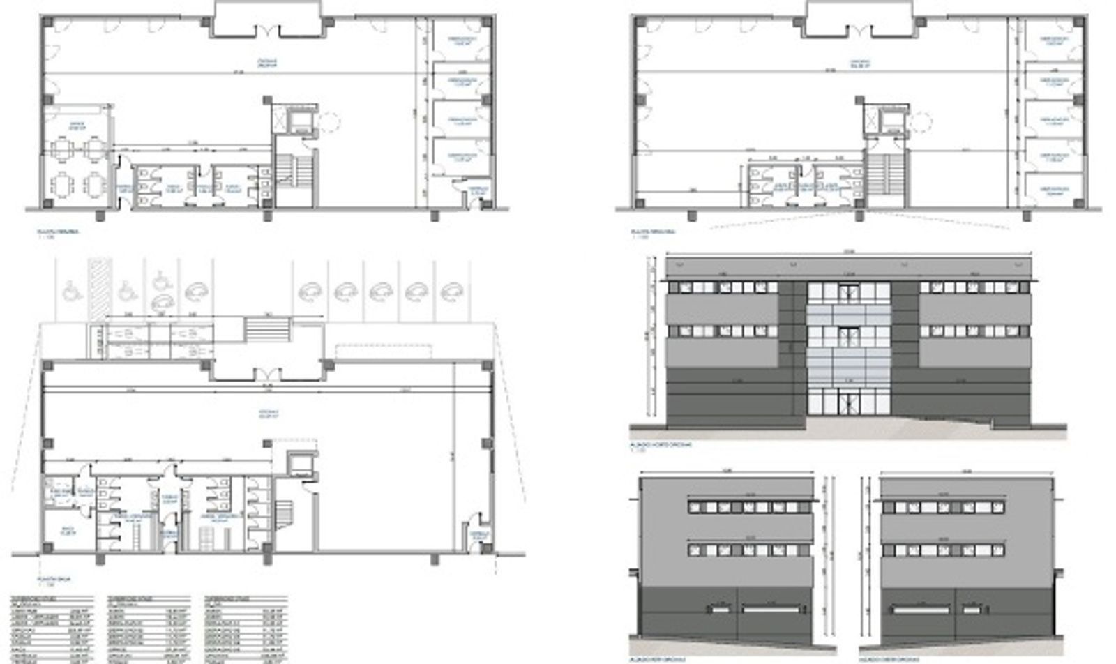
Almacén: 22.430 m2

Oficinas: 1.140 m2

Altillo: 2.560 m2


Espacio logístico de última generación

Oficinas distribuidas en tres plantas

Estructura de hormigón

Altura máxima: 11,50 metros

Equipada con sistemas de seguridad avanzados: 2 rociadores sprinklers y exutorios - Riesgo alto nivel 8

24 muelles de carga

2 rampas de acceso

Office / Comedor

Certificado de Sostenibilidad BREEAM Excellent


Disponibilidad: 2º Trimestre 2026



Buenas comunicaciones viarias:

Autopistas A-2 y AP-7

A 5 minutos de la fábrica SEAT

A 31 Km. Aeropuerto de El Prat (Barcelona)

A 34 Km. Centro de Barcelona

A 35 Km. Puerto de Barcelona


La renta no incluye posibles gastos de comunidad, IVA, vados, IBI, etc. Los honorarios profesionales serán abonados por la parte arrendataria.

En UBICAT, contamos con más de 20 años en el mercado inmobiliario especializados en el sector empresarial. Nuestra Función es asesorarle en todos los procesos de implantación de su actividad en sus nuevas instalaciones para que usted no tenga que distraer su atención de su negocio. Podemos ofrecerle servicios de intermediación, gestión de contratos de arrendamiento, contratos de compraventa y proyectos de ingeniería si lo precisa.

Características
Precio Alquiler 181.603 €/mes
Año de construcción 2026
Construidos 26.129,91 m2
Estado Nueva construcción
Calificación Energética En trámite
Sistema antiincendios
Ubicación
Escalas de eficiencia



Tu agente
Roger Velilla
Contáctanos

Si deseas más información sobre esta propiedad, por favor, rellena el formulario.

 Sí, he leído y/o acepto las Condiciones de uso y la Política de privacidad
Galería
Inmuebles similares:
 
175.806 €/mes
Ref. 1123  33.487 m2

Muy buena imagen corporativa, con gran altura (11 metros) y 32 muelles de carga. Ideal para logística. Con oficinas acondicionadas, comedor, vestuarios y aseos. Lista para entrar. 

 
165.348 €/mes
Ref. 1120  22.807 m2

Excelente imagen corporativa, dispone de 28 muelles de carga, con 12 metros de altura. Oficinas acondicionadas, Vestuarios, Aseos y Aparcamiento. Preparada para riesgo alto 8