Mapa   Ficha
ABRERA: Proyecto de NAVES LOGÍSTICAS con MUELLES de CARGA
Abrera - REF. 1112

6.912 m2
alquiler: 48.384 €/mes
antes: 283.052 €/mes
Descripción

Proyecto de naves logísticas (aisladas) nuevas a estrenar. Total adaptación a las necesidades del cliente

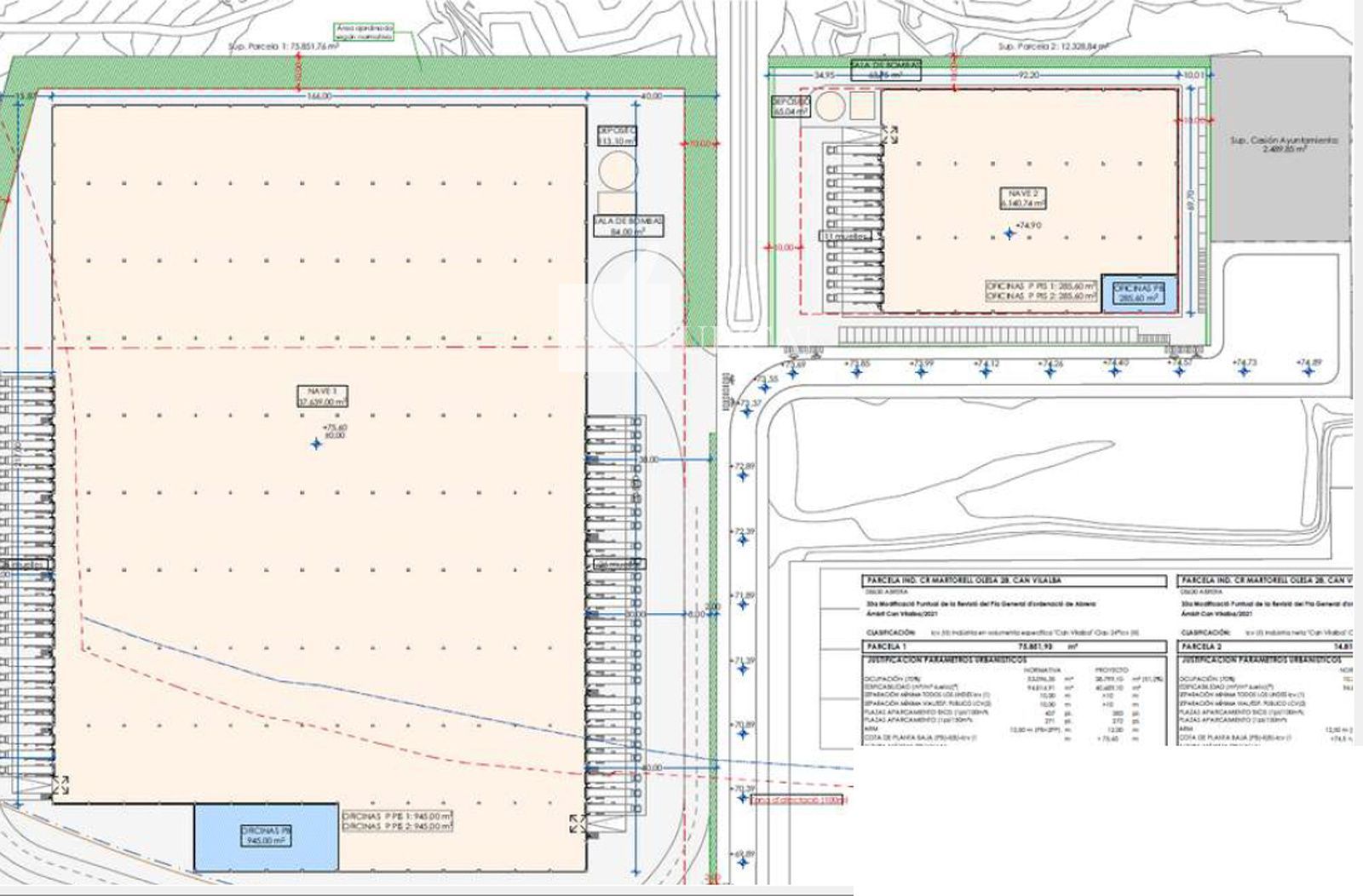
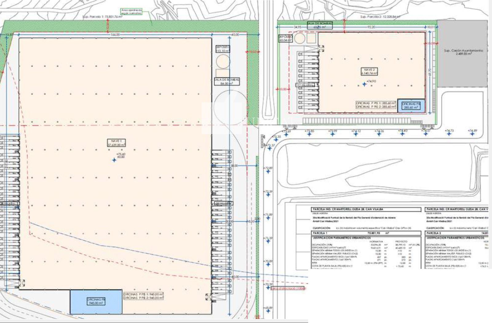
Dispone de dos edificios: 

Nave 1 (40.436 m2):

- Planta Baja: 37.742 m2

- Oficinas: 2.694 m2

Nave 2 (6.912 m2):

- Planta Baja: 6.420 m2

- Oficinas: 492 m2

Nave 1 + 2 (47.348 m2:

- Planta Baja: 44.162 m2

- Oficinas: 3.186 m2

Muelles de carga: 57 en total (46 en nave 1 y 11 en nave 2)

Rampas de acceso

Altura: 12 metros

Estructura de hormigón y cubierta deck

Capacidad de carga: 5 t/m2

Instalaciones: Luz, Fuerza y Agua

BIES, Rociadores (Sprinklers) y Detectores

Preparado para Riesgo Alto 6

Oficinas acondicionadas y cantina

Aseos y Vestuarios

Iluminación LED y placas fotovoltaicas

Preparado para certificación de sostenibilidad BREEAM Excellent

Aparcamiento para vehículos

Zonas verdes y recreativas


Disponibilidad: 2º Trimestre 2027


Parque logístico ubicado en el 2º anillo de Barcelona


Buenas comunicaciones viarias:

Autopistas A-2 y AP-7

A 5 minutos de la fábrica SEAT y a 7 minutos del centro de Martorell

A 33 Km. Aeropuerto de El Prat (Barcelona)

A 27 Km. Centro de Barcelona

A 38 Km. Puerto de Barcelona

A 2 km. de la estación de FGC (R5, R50 y S4)


La renta no incluye posibles gastos de comunidad, IVA, vados, IBI, etc. Los honorarios profesionales serán abonados por la parte arrendataria.

En UBICAT, contamos con más de 20 años en el mercado inmobiliario especializados en el sector empresarial. Nuestra Función es asesorarle en todos los procesos de implantación de su actividad en sus nuevas instalaciones para que usted no tenga que distraer su atención de su negocio. Podemos ofrecerle servicios de intermediación, gestión de contratos de arrendamiento, contratos de compraventa y proyectos de ingeniería si lo precisa.

Características
Precio Alquiler 48.384 €/mes
Año de construcción 2027
Construidos 6.912 m2
Estado Nueva construcción
Calificación Energética En trámite
Luz
Agua
Sistema antiincendios
Ubicación
Escalas de eficiencia



Tu agente
Roger Velilla
Contáctanos

Si deseas más información sobre esta propiedad, por favor, rellena el formulario.

 Sí, he leído y/o acepto las Condiciones de uso y la Política de privacidad
Galería
Inmuebles similares:
 
46.687 €/mes
Ref. 1179  6.614 m2

CAN MANENT: Nave tipo B de OBRA NUEVA de 6.613 m2 con una excelente imagen corporativa, distribuida en cuatro naves independientes de aproximadamente 1.600 m2 cada una

 
47.680 €/mes
Ref. 1051  9.506 m2

Nave en perfecto estado, con posibilidad de muelles de carga y de puente grúa. Con 6 puertas TIR y entrada independiente. Altura de 12 metros. Oficinas totalmente renovadas. Patio y parking.