Mapa   Ficha
LLINARS DEL VALLÈS: Nave con excelente IMAGEN CORPORATIVA, con fachada a la AP-7. Cuatro MUELLES de CARGA
Llinars del Valles (P. I. A7 Llinars Park) - REF. 1053

6.490 m2
alquiler: 38.000 €/mes
Descripción

Nave industrial con gran imagen corporativa

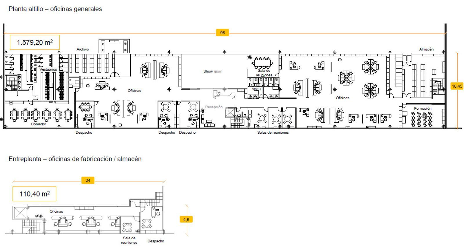
Planta baja: 4.800 m²

Entreplanta: 110 m²

Planta altillo: 1.579 m²

Diáfana, en perfecto estado

Escaparate a carretera principal

Recinto comunitario con fachada AP-7

Altura libre de 9 m / bajo altillo 5,85 m.

4 muelles de carga

4 Puertas seccionales

Suministros: luz y agua, dados de alta

Excelente ubicación

Instalaciones interiores

Totalmente equipado, tanto los 4.800 m2 de fábrica y almacén como los 1.690 m2 de oficinas y vestuarios.

No incluye mobiliario y estanterías

Es un polígono de nueva construcción. Su situación geográfica es privilegiada al disponer de entrada y salida directa a la autopista AP7, a través de la variante C35. El polígono se encuentra a tan solo 20 minutos de Barcelona, 15 de Mataró y 30 de Girona. Y además dispone de una fachada a la autopista AP7 de 2 kilómetros. 


Disponibilidad Inmediata

Excelentes Comunicaciones:

Autopista AP-7

A 55 Km. del Aeropuerto de El Prat (Barcelona)

A 39 Km. del Centro de Barcelona

A 40 Km. del Puerto de Barcelona

La renta no incluye posibles gastos de comunidad, IVA, vados, IBI, etc. Los honorarios profesionales serán abonados por la parte arrendataria.

En UBICAT, contamos con más de 20 años en el mercado inmobiliario especializados en el sector empresarial. Nuestra Función es asesorarle en todos los procesos de implantación de su actividad en sus nuevas instalaciones para que usted no tenga que distraer su atención de su negocio. Podemos ofrecerle servicios de intermediación, gestión de contratos de arrendamiento, contratos de compraventa y proyectos de ingeniería si lo precisa.

Características
Precio Alquiler 38.000 €/mes
Año de construcción 2024
Construidos 6.490 m2
Estado Nueva construcción
Calificación Energética En trámite
Luz
Agua
Tratamiento ignifugo
Sistema antiincendios
Ubicación
La dirección del inmueble es aproximada.
Escalas de eficiencia



Tu agente
Roger Velilla
Contáctanos

Si deseas más información sobre esta propiedad, por favor, rellena el formulario.

 Sí, he leído y/o acepto las Condiciones de uso y la Política de privacidad
Inmuebles similares:
 
37.443 €/mes
Ref. 1104  9.361 m2

Varias superficies disponibles en Logístic Park Constantí, con excelentes acabados y todos los servicios: muelles de carga, puertas TIR, gran altura, oficinas, patio para maniobras y parking.

 
38.574 €/mes
Ref. 1103  9.644 m2

Varias superficies disponibles en Logístic Park Constantí, con excelentes acabados y todos los servicios: muelles de carga, puertas TIR, gran altura, oficinas, patio para maniobras y parking.