Mapa   Ficha
ESPARREGUERA: Nave en RECINTO PRIVADO, en PERFECTO ESTADO
Esparreguera (P. I. Can Comelles) - REF. 1040

429,53 m2
alquiler: 2.191 €/mes
Descripción

 Nave industrial en perfecto estado

 Planta Baja: 342 m2

 Planta Primera: 87 m2

 Varias superficies disponibles (consultar)

 En recinto privado

 Altura: 7,50 metros

 Servicios de agua y luz dados de alta

 Instalaciones en funcionamiento

 Altillo / Oficina con aire acondicionado

 Despacho de dirección independiente

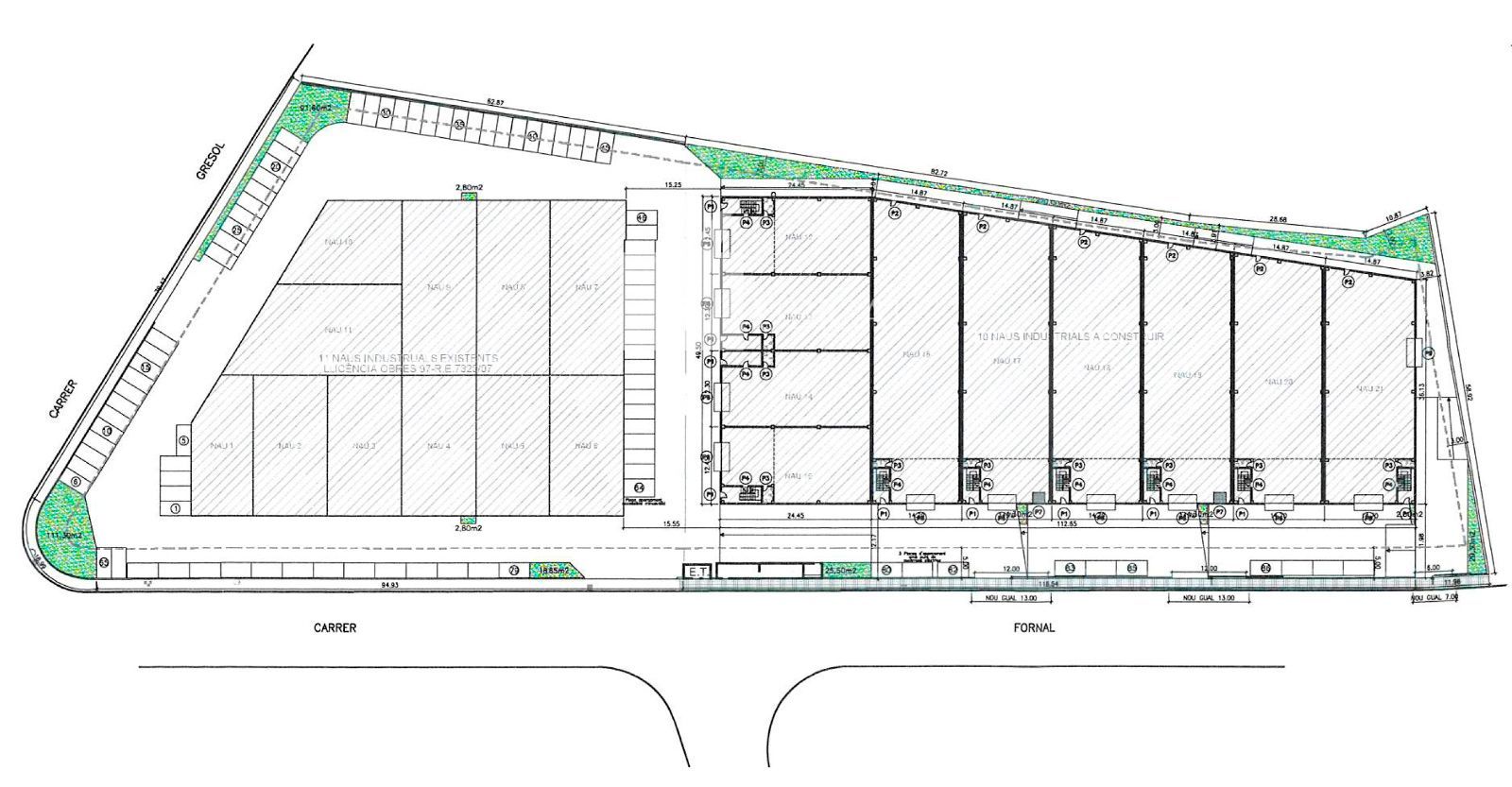
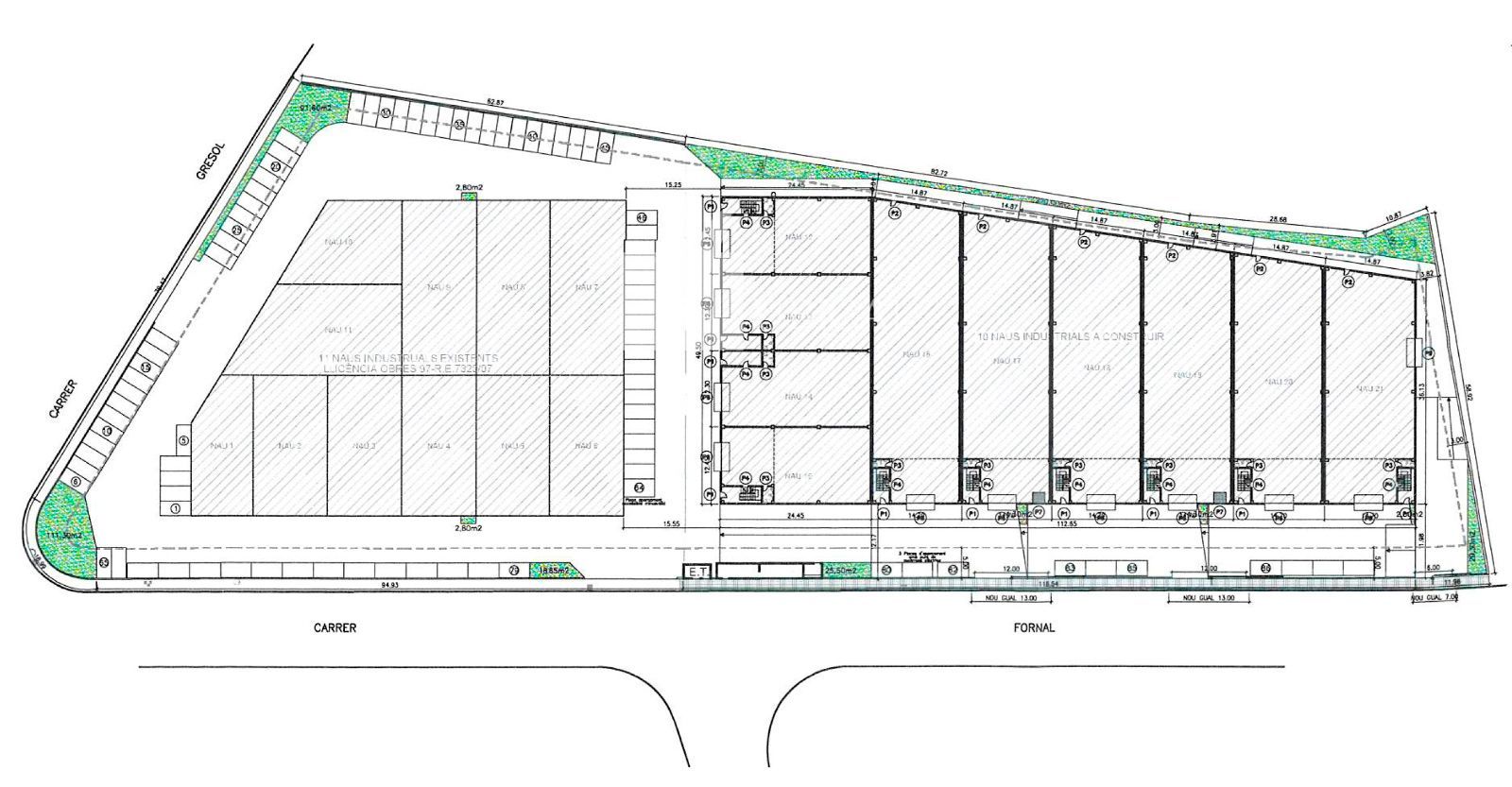
 Ubicada en Polígono Industrial Can Comelles

Disponibilidad Inmediata


Excelentes Comunicaciones:

A-2 y C-58

A 43 Km. del Aeropuerto de El Prat (Barcelona)

A 30 Km. del Centro de Barcelona

A 46 Km. del Puerto de Barcelona


La renta no incluye posibles gastos de comunidad, IVA, vados, IBI, etc. Los honorarios profesionales serán abonados por la parte arrendataria.


En UBICAT, contamos con más de 20 años en el mercado inmobiliario especializados en el sector empresarial. Nuestra Función es asesorarle en todos los procesos de implantación de su actividad en sus nuevas instalaciones para que usted no tenga que distraer su atención de su negocio. Podemos ofrecerle servicios de intermediación, gestión de contratos de arrendamiento, contratos de compraventa y proyectos de ingeniería si lo precisa.

Características
Precio Alquiler 2.191 €/mes
Año de construcción 2025
Construidos 429,53 m2
Estado Excelente
Aire acondicionado
Calificación Energética En trámite
Ubicación
La dirección del inmueble es aproximada.
Escalas de eficiencia



Tu agente
Roger Velilla
Contáctanos

Si deseas más información sobre esta propiedad, por favor, rellena el formulario.

 Sí, he leído y/o acepto las Condiciones de uso y la Política de privacidad
Galería
Inmuebles similares:
 
2.500 €/mes
Ref. 1097  566 m2

Nave en muy buen estado, lista para entrar, con planta baja diáfana, oficinas en altillo y patio delantero. Todas las normativas, acometidas y servicios. Lista para entrar

 
1.925 €/mes
Ref. 1071  300 m2

Planta Baja de 270 m²

Altillo de 30 m²

Patio de 240 m²

Nave Industrial esquinera con patio de 240m2

OFICINA ubicada en planta altillo. El inmueble dispone de todas las instalaciones en perfecto estado, con suministros dados de alta. Cuenta con medidas correctoras de seguridad, incluyendo BIES y estructura ignifugada. Dispone de un patio privado de 240 m².