Mapa   Ficha
BADALONA: Nave DIÁFANA, con PATIO y OFICINAS
Badalona (P. I. Can Ribó) - REF. 1022

763 m2
alquiler: 5.140 €/mes
Descripción

Nave en buen estado y buena presencia comercial

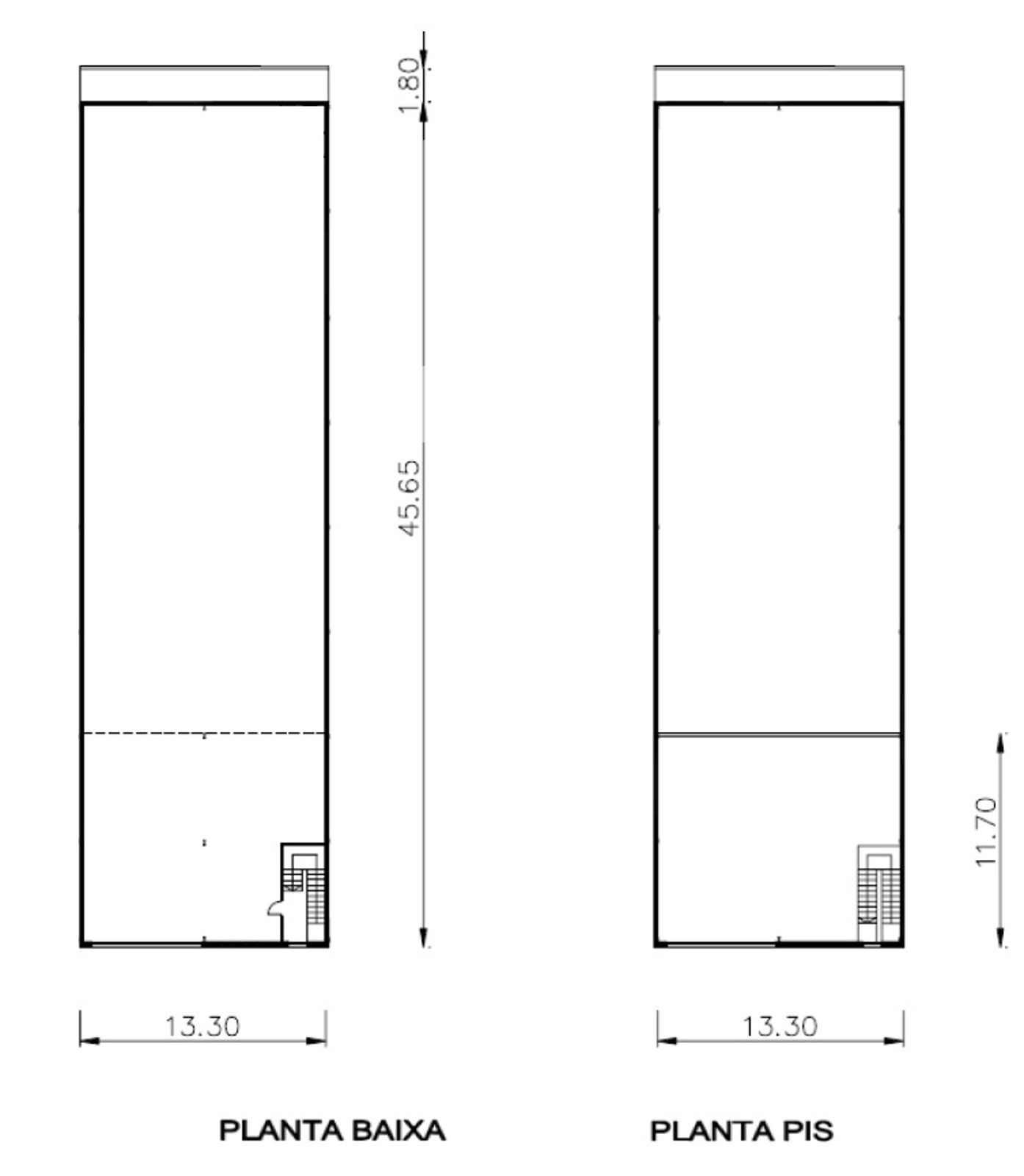
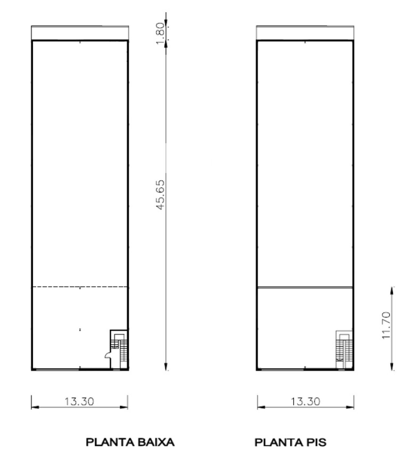
Planta Baja: 607 m2

Altillo: 156 m2

Patio: 24 m2

Superficie diáfana

Buena maniobrabilidad

Altura: 8-9 metros

Acabados de calidad, tipo oficina en Planta piso, con buena presencia

Servicios en Pl. Baja y Planta Piso

Instalaciones eléctricas y de gas natural

Salida de emergencias posterior, bocas de incendio, estructura ignifugada y corta llamas lateral, doble techo con cámara de aire en toda la nave

Fachada a C-31 y cerca de transporte público


Disponibilidad Inmediata


Buenas comunicaciones viarias:

Autopistas C-31, B-20 y N-II

A 27 Km. Aeropuerto de El Prat (Barcelona)

A 13 Km. Centro de Barcelona

A 20 Km. Puerto de Barcelona


La renta no incluye posibles gastos de comunidad, IVA, vados, IBI, etc. Los honorarios profesionales serán abonados por la parte arrendataria. En UBICAT, contamos con más de 20 años en el mercado inmobiliario especializados en el sector empresarial. Nuestra Función es asesorarle en todos los procesos de implantación de su actividad en sus nuevas instalaciones para que usted no tenga que distraer su atención de su negocio. Podemos ofrecerle servicios de intermediación, gestión de contratos de arrendamiento, contratos de compraventa y proyectos de ingeniería si lo precisa.


Características
Precio Alquiler 5.140 €/mes
Construidos 763 m2
Parcela 631 m2
Estado Buen estado
Calificación Energética En trámite
Luz
Gas
Ubicación
La dirección del inmueble es aproximada.
Escalas de eficiencia



Tu agente
Roger Velilla
Contáctanos

Si deseas más información sobre esta propiedad, por favor, rellena el formulario.

 Sí, he leído y/o acepto las Condiciones de uso y la Política de privacidad
Galería
Inmuebles similares:
 
4.795 €/mes
Ref. 1026  1.367 m2

Excelente nave industrial ubicada en Abrera, con superficie diáfana en Planta Baja y oficinas en Altillo, con patio frontal para aparcamiento. Estructura de hormigón y altura de 10 m. 

 
5.870 €/mes
Ref. 1171  1.067 m2

Superficie diáfana, con puerta TIR y puerta peatonal. Altura de 9 metros y estructura de hormigón. Todas las instalaciones, lista para entrar. Dispone de oficinas, aseos y patio