Mapa   Ficha
GRANOLLERS: Nave logística con MUELLES, OFICINAS y GRAN PATIO
Granollers (P.I. Congost) - REF. 1013

11.671 m2
alquiler: 79.363 €/mes
Descripción

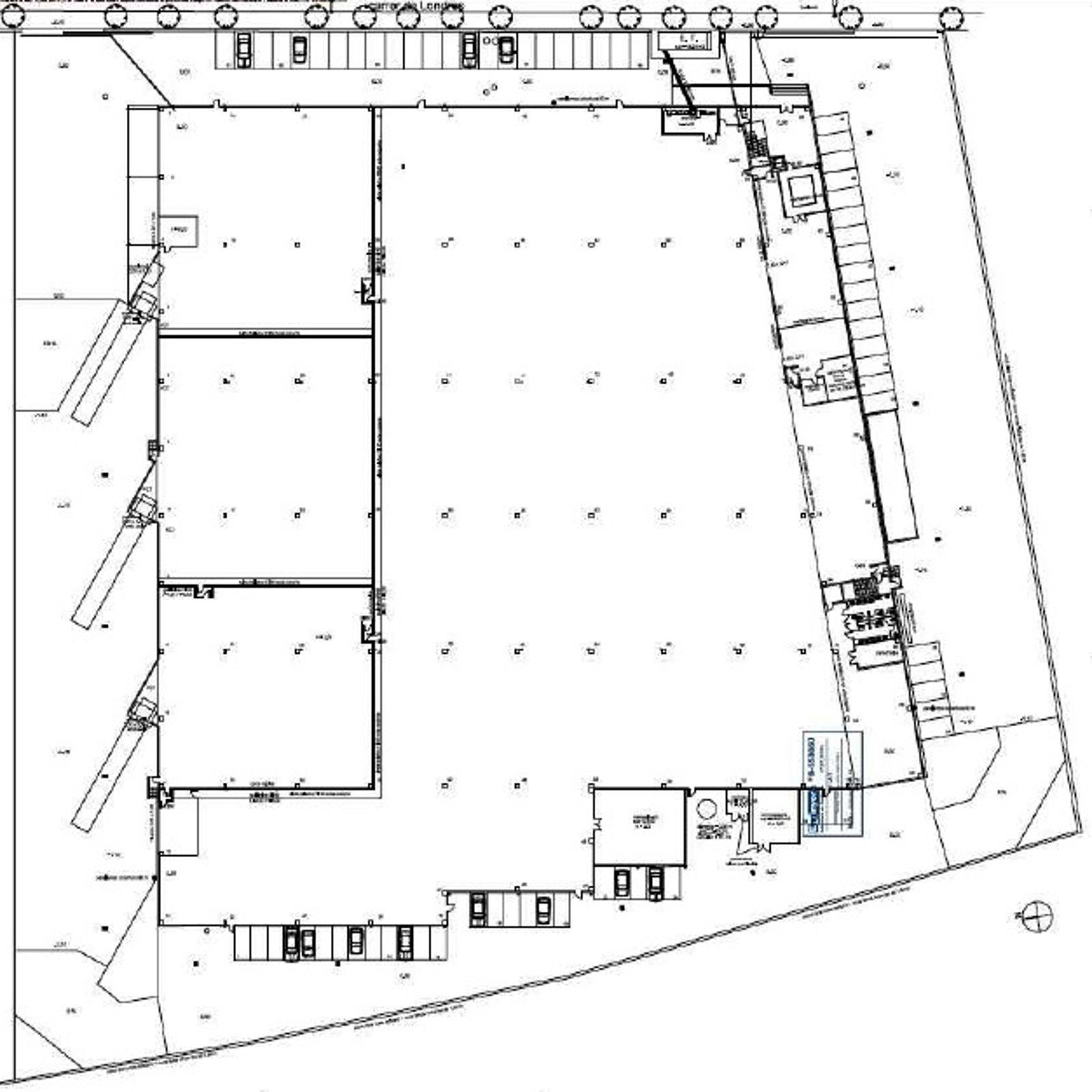
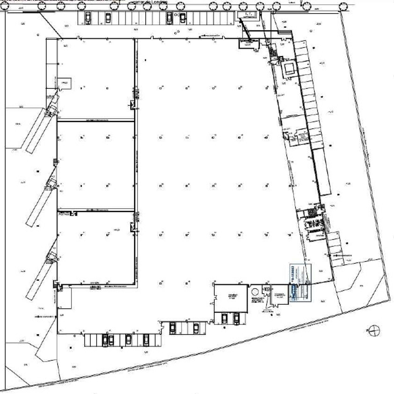
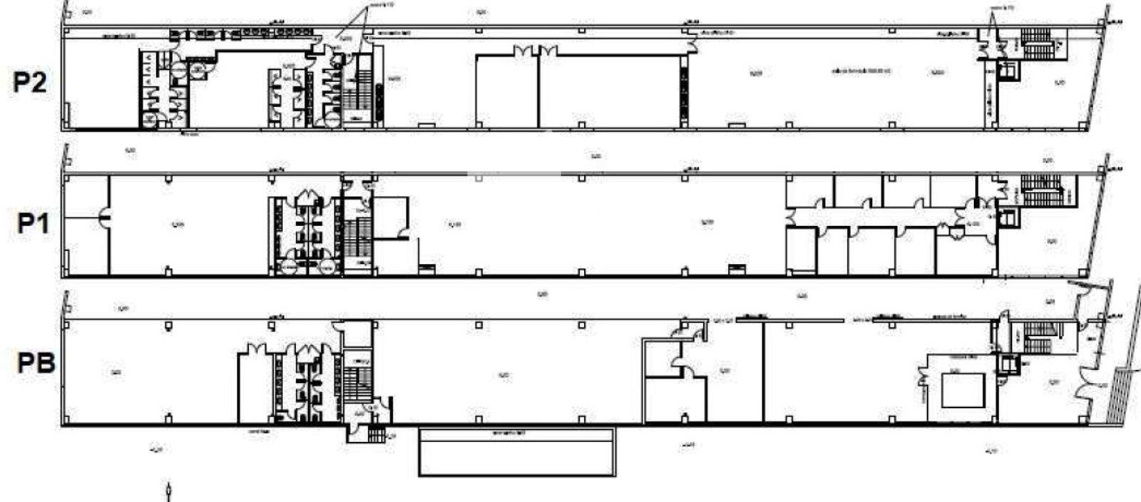
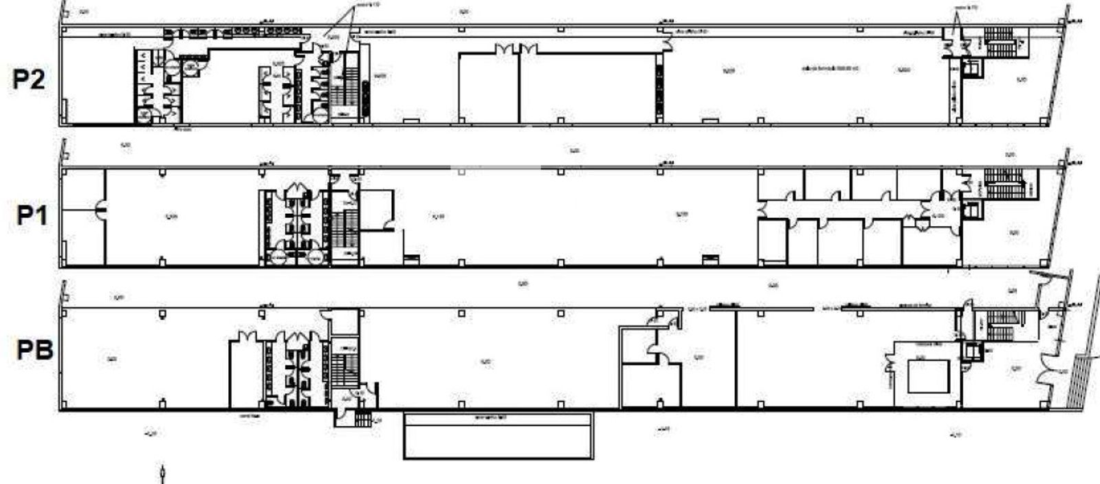
Nave industrial / logística (del 2018), tipo C

Planta Baja: 9.960 m2

Oficinas: 1.710 m2 (en dos plantas de 855 m2)

Patio: 6.842 m2

3 muelles de carga con plataforma y abrigo, ampliables a 19

3 puertas TIR al mismo nivel

Altura libre: de 12,72 a 14,57 metros

Estructura y cierres de hormigón. Cubierta tipo “Deck”

Muro cortina entrada oficinas

Ascensor de 6 plazas

BIES: Sala bomba y depósitos

Comedor para personal

Servicios para hombres y mujeres

Instalación de datos y de telefonía

Climatización (bomba de calor)

ET propia

Pararrayos

Iluminación LED

Sala de carga para toros

Riesgo Medio 5 (posibilidad de Riesgo Alto, con rociadores, depósito y bombas)

1 sector riesgo bajo (producción) y 3 sectores riesgo alto (almacenes)

Certificado Eficiencia Energética “A”

Polígono industrial consolidado: Congost


Buenas comunicaciones viarias:

Autopistas C-17, C-33 y AP7

A 43 Km. Aeropuerto de Barcelona

A 30 Km. Centro de Barcelona

A 41 Km. Puerto de Barcelona


En UBICAT contamos más de 20 años en el mercado inmobiliario especializados en el sector Industrial y logístico. Nuestra Función es asesorarle en todos los procesos de implantación de su actividad en sus nuevas instalaciones para que usted no tenga que distraer su atención de su negocio. Podemos ofrecerle servicios de intermediación, gestión de contratos de arrendamiento, contratos de compraventa y proyectos de ingeniería si lo precisa.

Características
Precio Alquiler 79.363 €/mes
Año de construcción 2018
Construidos 11.671 m2
Parcela 16.802 m2
Estado Excelente
Ascensor
Calificación Energética (A) VER
Sistema antiincendios
Ubicación
La dirección del inmueble es aproximada.
Escalas de eficiencia


Eficiencia Emisiones: 11,00
Eficiencia Consumo: 65,00
65
11

Tu agente
Roger Velilla
Contáctanos

Si deseas más información sobre esta propiedad, por favor, rellena el formulario.

 Sí, he leído y/o acepto las Condiciones de uso y la Política de privacidad
Inmuebles similares:
 
71.534 €/mes
Ref. 1124  16.656 m2

Superficie logística con gran imagen corporativa y visibilidad desde la autopista. 30 muelles de carga y 2 rampas de acceso. Oficinas y aparcamiento. Preparada para Riesgo Medio 5


 
74.145 €/mes
Ref. 1115  16.189 m2

Dos módulos con muelles de carga y rampas de acceso, oficinas, aseos y vestuarios equipados. Patio para maniobras y plazas de parking. Puerta TIR y 11 m. de altura